Come sono state utilizzate per la gestione e valorizzazione dell’Arsenale le entrate derivate da eventi e altre attività?


Come sono state utilizzate per la gestione e valorizzazione dell’Arsenale le entrate derivate da eventi e altre attività?


La visita in Arsenale e alla Thetis ha avuto una ottima risposta in termini di partecipazione (40 partecipanti) e di coinvolgimento nell’affrontare i tanti temi caldi del compendio…

Nell’incontro con Thetis ci hanno informato che, con la chiusura del Consorzio Venezia Nuova entro il 2026 come previsto da legge dello stato, Thetis perde il suo maggior “azionista-cliente” e l’azienda, non essendo acquisita dalla nuova Autorità per la Laguna, sarà “venduta” al miglior acquirente oppure messa in liquidazione.
Una brutta prospettiva per i 90 dipendenti, per la perdita di un enorme patrimonio di conoscenze, per il rischio che lascino l’Arsenale.
Su questo tema scriveremo una lettera pubblica affinchè questa importante presenza non venga a mancare.
Dopo l’incontro e la visita degli spazi di Thetis, abbiamo continuato a stare assieme pranzando presso la mensa dell’Arsenale dove abbiamo raccolto 8 nuove iscrizioni e distribuito il libretto del Forum.










Queste incursioni/esplorazioni dentro l’Arsenale, sempre precluso ai più, ci rimettono in contatto con lo scopo primo della nostra associazione: Restituire l’Arsenale alla città.
Per questo pensiamo di replicare questa esperienza chiedendo di incontrare e visitare il CVN, La Biennale e la Marina Militare.
Ti invitiamo a iscriverti al Forum per il 2026 versando 25€ su:
IBAN: IT15G0306909606100000412559
Mettendo: iscrizione 2026 nome e cognome.
Vi aspettiamo.
Il Direttivo del Forum Futuro Arsenale

A oltre dieci anni dal passaggio al Comune di Venezia di buona parte dell’Arsenale, questo rimane diviso i quattro parti. Le cittadelle chiuse della Biennale, della Marina Militare, del Sistema Mose, occupano e rendono inaccessibili ai veneziani i tre quarti dell’Arsenale.

La parte nord residua nella disponibilità del Comune, che ha fatto restauri minimi dopo quelli realizzati da Magistrato alle Acque prima del trasferimento, viene utilizzata in modo sporadico, per eventi anche importanti ma di breve durata. Le uniche attività permanenti sono l’ISMAR-CNR e un bar.
Siamo preoccupati per la mancanza di un piano, o almeno di una visione, e di adeguate iniziative del Comune di Venezia per l’insediamento in Arsenale Nord di attività permanenti mentre assistiamo al trasferimento di tutti i fondi che il Comune ha ricevuto dallo Stato per l’Arsenale (oltre 150 milioni) alla Biennale per realizzare interventi di recupero e restauro di proprietà comunali sia all’interno che all’esterno dell’area che questa ha in concessione, fanno pensare che l’Arsenale Nord sia gestito dal Comune solo per mantenelo pronto ad essere trasferito alla Biennale. Un’impresa per molti aspetti benemerita ma che deve essere indirizzata per non calpestare la citta nel suo percorso di crescita.
Poichè per rigenerare l’Arsenale Nord e innescare la trasformazione di tutto l’Arsenale servono progetti e una visone basata sulla storia e sullo stato dell’Arsenale, il Forum Futuro Arsenale ha ricordato i 5 progetti proposti al Sindaco nel 2017 (liquidati come mere “idee”) e illustrato altri 5 progetti per insediare all’Arsenale Nord nuove attività permanenti, in linea con la storia e la vocazione del luogo, che lo rendano un polo produttivo vivace e slegato al turismo.
Per attuare in modo pragmatico il piano non bastano i progetti: serve uno strumento di gestione delle trasformazioni e di quanto via via realizzato. Dopo la liquidazione della società Arsenale Spa da parte del comune. abbiamo proposto una “fondazione di partecipazione”.
Le nostre proposte sono solo il punto di partenza di un percorso che vorremmo poter discutere con il Comune e che intanto proponiamo ai cittadini, per avere indicazioni su come migliorare proposte e idee.


Con un piano e dei progetti si possono trovare finanziamenti sia pubblici che privati, senza aspettare, come fatto finora, che arrivino soldi da Roma per qualche restauro. Mentre si aspetta gli edifici inutilizzati vanno in rovina.
L’Arsenale è un patrimonio di alto valore che permette di richiamare le risorse necessarie alla sua graduale rigenerazione.
Agganciare la rigenerazione l’Arsenale alla locomotiva turistica sarebbe forse facile ma non nell’interesse della città che soffre di eccesso di turismo.

La realizzabilità dei 10 progetti proposti dal Forum, che prevedono anche investimenti privati, è stata illustrata in dettaglio con alcuni esempi.


Inoltre, per rigenerare l’Arsenale Nord è necessario collegarlo e integrarlo con il resto detta città, con percorsi aperti in permanenza a tutti, che facciano breccia nelle mura delle cittadelle.

Gli spazi tra gli edifici devono essere liberi per il transito, devono permettere a tutti di conoscere l’Arsenale. La Biennale da Fiera internazionale a cui si accede solo in alcuni mesi all’anno con un biglietto potrebbe diventare un “quartiere dell’arte” sempre aperto: gli edifici e i padiglioni resteranno accessibili solo con il biglietto ma gli spazi aperti fra gli edifici saranno sempre accessibili.
Dopo la cessione alla Marina delle otto tese della sponda sud della Darsena Grande e dello Stradal Campagna diventa però molto più difficile collegare Arsenale Nord e Riva degli Schiavoni.


Ma non certo impossibile aprire l’Arsenale alla città, se il Comune avrà idee chiare e tratterà con flessibile determinazione con i concessionari e con la Marina.
Per rivedere questa cessione il Forum Futuro Arsenale, con l’appoggio di Italia Nostra, si è appellato al TAR e al Consiglio di Stato.
Il PRESIDENTE AVVOCATO SUPPIEJ ha illustrato i motivi del ricorso.
Il PROFESSOR LUCA ZAN nel suo intervento ha messo a fuoco la necessità di utilizzare l’Arsenale in linea con le sue potenzialità senza però mascherarne l’architettura storica e gli spazi proprio nei periodi in cui viene aperto.


La PROFESSORESSA LAURA FREGOLENT ha illustrato le sinergie possibili con gli importanti interventi di trasformazione urbana in discussione nel sestiere di Castello.
ALTRI INTERVENTIi hanno evidenziato la necessità di una strategia condivisa per gestire unitariamente tutto l’Arsenale mantenendone la storica unità.


Sabato 15 aprile 2023 – visita guidata all’Arsenale industriale. Vi aspettiamo numerosi !


Il Consiglio Comunale di Venezia, con la delibera n. 18 del 03.03.2022, ha approvato lo schema di protocollo d’intesa con Ministero della Cultura e Ministero della Difesa per variare l’assetto proprietario dell’Arsenale… senza badare alle critiche nostre, di molte associazioni, di molti cittadini e pure della minoranza consiliare che hanno evidenziato l’incoerenza di quella manovra con le disposizioni di legge e con gli stessi interessi dell’Amministrazione comunale.
Contro la ingiustificata cessione del patrimonio pubblico e l’indifferenza alle richieste di tanti cittadini intendiamo presentare un ricorso al Tribunale Amministrativo Regionale del Veneto, entro il 14 maggio, per far dichiarare l’illegittimità di quella delibera.
E’ quindi necessario coprire le spese di legali e di giudizio che abbiamo stimato fino a circa 20.000 euro
Causale versamento: RICORSO al TAR VENETO
IBAN bancario: IT32S03 0696 7684 5107 8539 0484
Beneficiario: Associazione FORUM FUTURO ARSENALE
Associazione Forum Futuro Arsenale
email: segreteria@futuroarsenale.org
Web: www.futuroarsenale.org
Facebook: Futuro Arsenale
Esiste uno spazio tra il Teatro dell’Arsenale e l’ingresso “Duca degli Abruzzi” alla Biennale che permette di collegare Campo della Tana con il Piazzale dei Vigili del Fuoco, oltre il muro merlato di cinta dell’Arsenale.




Una volta raggiunta la Riva delle Ancore sulla Darsena Grande, girando a destra si potrebbe arrivare fino alle Gaggiandre lungo la Riva est della Darsena (dove c’è la maestosa gru Amstong a vapote) e da lì arrivare alla sponda antistante la Torre Velaria di Porta Nuova dove è prevista (e anni fa finanziata dal Provveditorato Interrregionale alle Opere Pubbliche del Triveneto) la realizzazione di un ponte girevole sul Canale di Porta Nuova. Forse la Marina Militare non ama questo ponte, volendo avere sempre liberi l’accesso e l’uscita dalla Darsena. Ma il ponte potrebbe essere sostituito da un più veneziano traghetto, magari automatizzatato.
Il complesso di edifici e spazi della Biennale resterebbe a est del percorso, fruibile dai visitatori in continuità senza interferenze con il percorso permanentemente aperto al pubblico. I visitatori della Biennale potrebbero raggiungere la riva e poi rientrare attraverso varchi con un presidio elettronico, che riconosce i visitatori che hanno pagato un biglietto.
Il percorso pubblico, come qualsiasi calle veneziana, potrebbe naturalmente essere utilizzato anche per i lavori di allestimento delle mostre della Biennale.

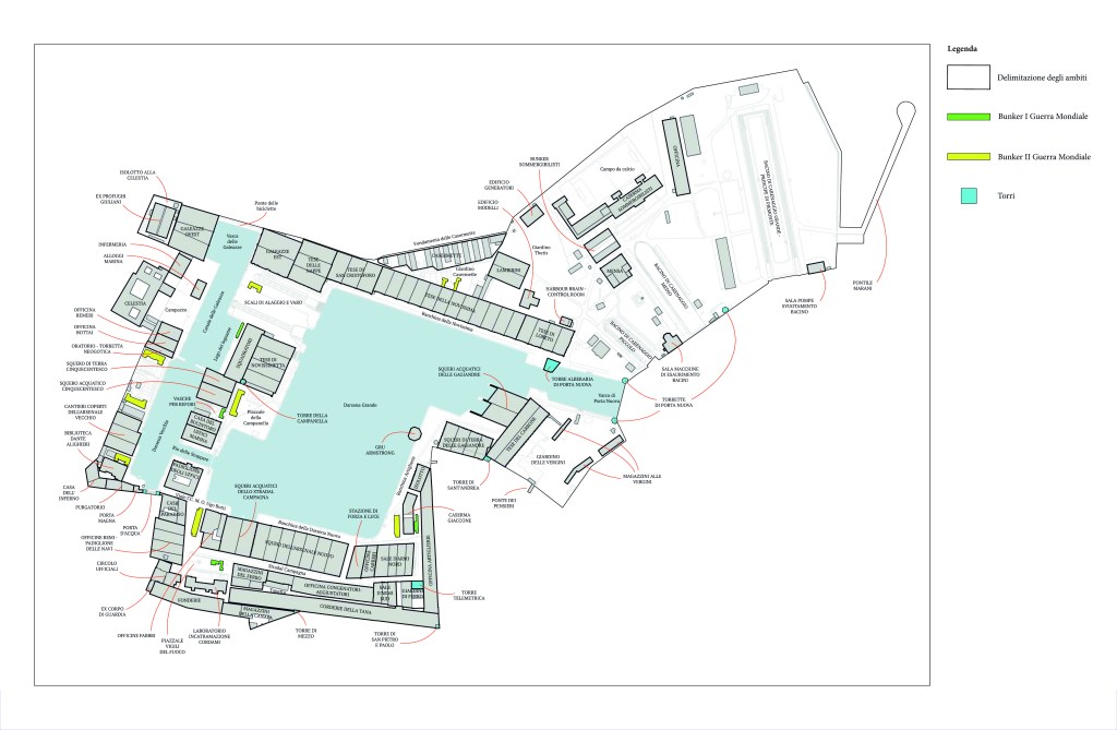
L’Arsenale è rimasto chiuso per anni e così anche moltissimi veneziani faticano ora ad orientarsi e dare i nomi ai luoghi. Questa perdita della mappa mentale di un un luogo è il primo fondamentale passo per negarne il valore culturale e aprire così la possiblità di ogni tipo di speculazione.
Ecco allora un mappa con la toponomastica dell’intero Arsenale. Alcuni nomi possono essere controversi, ma si tratta delle denominazioni più documentate, ufficializzate dal Comune nel 2015 con la mappa seguente.
Cliccate sull’immagine per vederla su Gdocs e poterla ingrandire di molto.

25 – 26 -27 aprile 2014
Questo video “storico” ci mostra l’apertura straordinaria dell’Arsenale di Venezia nel 2014 per pochi giorni. Nella seconda parte del video – a partire dal minuito 6:00 – ci sono una serie interviste ai cittadini che esprimono le loro idee su come dovrebbe essere valorizzato l’intero complesso.
Regia e montaggio:
Silvio Franceschet
Riprese:
Giovanni Cimarosti
Silvio Franceschet
L’Arzanà de’ Viniziani è complesso monumentale che rappresenta la memoria storica della potenza marittima, militare, industriale, navale e produttiva dello Stato Veneto, spazio urbano, deposito di competenze e di tradizioni, luogo simbolico e fattore di potenzialità di crescita culturale, sociale ed economica della città.

Esaurita la sua funzione di fabbrica e di presidio militare, di cui oggi rimangono aspetti didattici (Istituto di Studi Militari Marittimi) e di rappresentanza (Simposio delle Marine del Mediterraneo e del Mar Nero-Regional Seapower Symposium), e superata una lunga fase di abbandono durante la quale l’intero complesso era totalmente precluso al controllo della città, l’Arsenale ha attraversato un periodo in cui importanti azioni di recupero si sono intrecciate con conflitti tra le parti che se ne disputavano la proprietà e l’uso.
Finalmente, nel 2012 con la legge dello Stato n. 221, l’Arsenale è stato restituito al suo naturale proprietario: Venezia.
Questo passaggio epocale avrebbe dovuto rappresentare l’inizio di una progettualità di vasto respiro, sia sul piano del recupero fisico che di quello funzionale e sociale, per fare diventare l’Arsenale il motore e il luogo del rilancio della città storica.
Qualunque città europea che avesse a disposizione un bene di questa portata (48 ettari) avrebbe concentrato le proprie energie e intelligenze per valorizzarlo adeguatamente e farlo diventare il punto di forza della propria immagine e della propria economia.
Il Comune di Venezia al contrario ha abbandonato, a partire dall’ultima giunta di centrosinistra per proseguire fino ad oggi, ogni ipotesi di gestione unitaria e ha progressivamente delegato l’utilizzo dell’Arsenale ai soggetti – Marina Militare, Biennale e Consorzio Venezia Nuova – che ne dispongono secondo i propri scopi senza relazionarsi con la città.
Il “Protocollo d’intesa con i Ministeri di Difesa e Cultura per il progetto di valorizzazione” è l’ultimo e conclusivo atto di questo processo.
Il Comune retrocede alla Marina e alla Biennale importanti spazi di sua proprietà, rinuncia a un uso continuativo a favore della città della Darsena grande, prende atto che l’intero complesso, tranne parti residuali recuperate a suo tempo tramite la società Arsenale s.p.a., sia definitivamente precluso all’accesso dei cittadini: rinuncia in sintesi a qualsiasi progetto di trasformazione dell’Arsenale in una parte di città viva, aperta, produttiva capace di dialogare con il mondo.
Tutto ciò viene condotto dall’attuale amministrazione senza alcun processo di discussione democratica e di trasparenza delle decisioni, con l’inaccettabile inserimento di anacronistiche “clausole di riservatezza” e imposto ad una città esausta e silenziosa sbandierandolo come un grande successo di rivitalizzazione dell’Arsenale.
Riteniamo che si stia per passare il segno e che sia il momento di lanciare una mobilitazione della città volta al recupero integrale della potestà comunale sull’Arsenale.
L’Arsenale è patrimonio inalienabile dei veneziani ed essi intendono badare a mantenerlo vitale e tutelato nella sua interezza.
Le proposte di protocolli che non rispettano questa elementare verità, sancita per legge al momento della restituzione del complesso al Comune di Venezia, vanno respinte.
L’Amministrazione Comunale va invitata e convinta a rispettare questa impostazione; diversamente deve essere sostituita con una Amministrazione dalla parte dei cittadini e non dalla parte di interessi altri e opachi.
Le cose vanno rimesse nella loro corretta dimensione vale a dire:
Per dare corpo a questa impostazione che corrisponde alla volontà ripetutamente espressa dalla città e confermata al momento del passaggio di proprietà dell’Arsenale dal Demanio al Comune dovrà essere costituito un organismo di Gestione dell’Arsenale dotato di tutti i poteri di organismi analoghi a livello europeo creati per gestire complessi di questa natura.
A partire dai programmi e progetti sviluppati e approfonditi in questi anni – dopo l’approvazione del Consiglio Comunale all’unanimità del Documento Direttore del 2001- da soggetti diversi quali la società Arsenale spa, l’Ufficio Arsenale del Comune, il Forum Futuro Arsenale e altri che sono stati o che verranno istituzionalmente o democraticamente coinvolti, il Comune, tramite l’organismo unico di Gestione da costituire, elaborerà un progetto di uso dell’intero compendio dell’Arsenale che sia finalmente all’altezza delle aspettative e del ruolo di Venezia.
Pertanto chiediamo:
Lanciamo una grande mobilitazione, sia cittadina che internazionale, perché le lamentazioni sui destini di Venezia e sul suo declino di città vetrina sottoposta a un processo di privatizzazione da parte delle grandi istituzioni culturali, come della grande e della piccola speculazione sulle ricchezze che la città ha accumulato nei secoli non rimangano vuote e ipocrite dichiarazioni.
Forum Futuro Arsenale (Presidente Luigi Fozzati), Venezia
Venezia Cambia (Presidente Marco Zanetti), Venezia
Italia Nostra Venezia, Venezia
Associazione Italiana per il Patrimonio Archeologico Industriale, AIPAI (Pres.Edoardo Currà) Roma
Associazione Musei Marittimi Mediterraneo, AMMM, Barcellona, Spagna
Associazione Vela Al Terzo (Presidente Davide Pesavento), Venezia
Ecoistituto del Veneto “Alex Langer”
Museo della Barca Lariana, Lago di Como
ASDEC Associazione Scafi d’Epoca e Classici (Presidente Fabio Malcovati), Milano
ISTIAEN Istituto Italiano di Archeologia e Etnologia Navale, Venezia
IIAS Istituto Italiano di Archeologia Subacquea (Presidente Edoardo Tortorici), Catania
FIBaS Federazione Italiana Barche Storiche c/o Yacht Club Italiano, Genova
AVEV Associazione Vele d’Epoca Verbano, Lago Maggiore
Partito Democratico, Venezia
Gruppo Consiliare Terra e Acqua 2020, Venezia
Gruppo Partito Democratico in Consiglio Comunale, Venezia
Gruppo M5S, Venezia
Comitato Ambientalista Altro Lido
P.E.R. Venezia Consapevole
Associazione Civica Venezia Serenissima
ARZANA’ Associazione per lo Studio e la Conservazione delle Imbarcazioni Veneziane
Società di Mutuo Soccorso Carpentieri e Calafati, Venezia
Il Filo di Legno, Venezia
Medicina Democratica
Laboratorio Venezia – Società della Cura di Venezia
Comitato Rialto Nuovo (Presidente Gabriella Giaretta), Venezia
Associazione Venezia Viva, Venezia
Associazione Atelier Aperto, Venezia
Centro Internazionale della Grafica, Venezia
Associazione El Felze, Venezia
Associazione FARO Venezia
Movimento Venezia Autonoma, Venezia
Rivista “Centro Studi Arsenale”, Venezia
Atlantic Challenge Genova, Genova
Associazione Storie di Barche, Venezia
Community Avamposto Rialto, Venezia
Associazione Venezia Verde Progressista
Associazione storiAmestre, Mestre
Associazione Tutta la Città insieme!
Circolo Pd San Marco Levorin, Venezia
Circolo Pd di Lido e Pellestrina
Associazione Culturale il Caicio, Venezia
Consolato del Touring Club Italiano Venezia
Comitato Esecutivo COBAS Pubblico Impiego – lavoratori autorganizzati del Comune di Venezia
Circolo Culturale Renato Nardi Giudecca (Presidente Luigi Giordani), Venezia
Compagnia della Marineria Tradizionale IL NUOVO TRIONFO (Presidente Massimo Gin), Venezia
Associazione Amici del Nuovo Trionfo (Presidente Alessandro Ervas), Venezia
Associazione Venezia è Tua (Presidente Ugo Bergamo), Venezia
Venessia.com (Presidente Matteo Secchi), Venezia
Associazione Italia Viva (Coordinamento Comunale-Franco Vianello Moro-Donatella Schiuma), Ve
Europa Verde sezione Venezia (portavoce Dario Vianello), Venezia
Associazione Poveglia per tutti (Presidente Fabrizia Zamarchi), Venezia
Gruppo Fb Ultimi Veri Venexiani, Venezia
Laguna nel Bicchiere – Le vigne ritrovate, Venezia
Rifondazione Comunista, Sezione 7 Martiri Castello, Venezia
LIDO DAMARE Associazione Culturale Ambientale (Presidente Daniela Milani), Venezia
Partito Comunista Sezione T. Vallotta, Venezia
YTALI.COM direzione e collettivo
Associazione Culturale Batipai, Venezia
Associazione Guide Turistiche di Venezia (AGTV), Venezia
Centro Sociale Morion, Venezia
Gruppo 25 Aprile, Venezia
Associazione Amici del Parco di San Giuliano, Venezia
Associazione DO.VE. Dorsoduro, Venezia
Luigi Fozzati, Venezia
Giorgio Suppiej, Venezia
Cesare Peris, Venezia
Alberto Bernstein, Venezia
Marco Zanetti, Venezia
Stefano Boato, Venezia
Pierandrea Gagliardi, Venezia
Roberto D’Agostino, Venezia
Luca Zan, Università di Bologna, Bologna
Claudio Menichelli, Associazione AIPAI, Roma
Jean Claude Hocquet, Università Ca’ Foscari e Lille, Lille (F)
Jacqueline Hocquet, Lille (F)
Aleramo Lanapoppi, Venezia
Amerigo Nutolo, Venezia
Davide Pesavento, Venezia
Tiziana Penzo, Venezia
Alberto Madricardo, Venezia
Sandro Castagna, Venezia
Franco Avicolli, Venezia
Carlo Beltrame, Venezia
Giuseppe Mastronuzzi, Università degli Studi Aldo Moro, Bari
Edoardo Currà, Associazione AIPAI, Roma
Franco Mancuso, Associazione AIPAI, Roma
Donatella Perruccio Chiari, Venezia
Paolo Puppa, Venezia
Sabine Miquelis, Venezia
Michele Boato, Venezia
Franco Rigosi, Venezia
Cesare Scarpa, Venezia
Laura Di Lucia Coletti, Venezia
Claudio Madricardo, Venezia
Tomaso Montanari, Università per Stranieri Siena, Firenze
Ugo Bergamo, Venezia
Franco Migliorini, Venezia
Sergio Piovesan, Venezia
Mariagrazia Gagliardi, Venezia
Giovanni Andrea Martini, Venezia
Antonio Infante, Venezia
Stefano Calandra, Venezia
Elvia Cecchinato, Venezia
Anna Asta, Venezia
Helene Salvadori, Venezia
Gabriella Giaretta, Venezia
Giuseppe Tattara, Venezia
Renzo De Antonia, Venezia
Simonetta Bonato, Venezia
Francesca Provantini, Venezia
Silvio Testa, Venezia
Andrea Merola, Venezia
Ignazio Pavanini, Venezia
Guia Varotto, Venezia
Alberto Ticcò, Venezia
Luisella Romeo, Venezia
Anna Gagliardi, Venezia
Monica Sambo, Venezia
Adriano De Vita, Venezia
Roberto Ellero, Venezia
Cristina Pagan, Venezia
Rossana Vianello, Venezia
Christine Adam, Venezia
Giorgio Nardo, Venezia
Pierluigi Gasparini, Venezia
Lilli Olbi, Venezia
Silvano Gosparini, Venezia
Sergio Torcinovich, Venezia
Renzo Scarpa, Venezia
Luca Bianchetto, Venezia
Paolo Peretti, Venezia
Pierangelo Campodonico, Genova
Gianni Darai, Venezia
Pasquale Ventrice, Venezia
Mirella Toso, Venezia
Fabio Santin, Venezia
Anna Alberati, Venezia
Collen McCann, Venezia
Franca Simoli, Venezia
Maurizio Vittoria, Venezia
Valeria Boscolo, Venezia
Giovanni Panella, Genova
Davide Gnola, AMMM, Cesenatico
Federica Varosio, Venezia
Antonia Sciancalepore, Roma
Donatella Calabi, Venezia
Antonio Rosso, Vicenza
Antonio Socal, Venezia
Filippo Lovato, Venezia
Alessandra Chemollo, Venezia
Giovanni Sarpellon, Venezia
Stefano Vinciguerra, Soprintendenza del Mare, Regione Siciliana, Palermo
Maria Sirago, Napoli
Gian Piero Martino, già MIBACT, Genova
Maurizio Daccà, Istiaen e Museo del Mare, Genova
Paolo Sivelli, AVEV – Officine dell’Acqua, Milano
Guido Rosato, Istiaen – già MIBACT, Genova
Roberto Giacinti, Istiaen, Genova
Massimo Maresca, Istiaen, Genova
Fabio Malcovati, ASDEC, Milano
Marco Bernocchi, ASDEC, Milano
Marco Bonzianigo, ASDEC, Milano
Alessandro Mazzoni, ASDEC, Milano
Cristina Rapisardi, ASDEC, Milano
Marco Soldati, ASDEC, Milano
Marco Stoppani – ASDEC, Milano
Alberto Villa, ASDEC Milano
Vittorio Pozzo, ASDEC, Milano
Ferdinando Zanoletti, Museo della Barca Lariana, Milano
Margherita Corrado, Roma
Roberto Guzzardi, FIBaS, Associazione Storie di Barche, Genova
Riccardi Visintin, Udine
Maria Luisa Nava, già Soprintendente Archeologo MIC, Roma
Giampietro Pizzo, Venezia
Gian Renzo Traversaro, Venezia
Franco Schenkel, Venezia
Francesco Pedrini, Venezia
Alessandro Corti, Venezia
Maria Carola Morozzo, FIBaS, Genova
Laura Lobina, Venezia
Tiziana Plebani, Venezia
Marco Scurati, Venezia
Elisabetta Xausa, Venezia
Renata Mannise, Venezia
Alessandra Regazzi, Venezia
Paolo Lugnan, Venezia
Carmelina Rubino, Trieste
Marina Rodinò, Venezia
Roberto Strozzi, Venezia
Katia Zanetti, Venezia
Jacopo Piccini, Venezia
Anna Zemella, Venezia
Giovanna Poggi, Venezia
Carlo Marchesi, Venezia
Silvia Bortolini, Venezia
Matteo Secchi, Venezia
Francesco Penzo, Venezia
Dario Vianello, Venezia
Ambra Dina, Venezia
Pietro Alvise Gaggio, Venezia
Maria Rosaria Culicelli, Venezia
Pietrangelo Pettenò, Venezia
Nadia Filippini, Venezia
Nicoletta Frosini, Venezia
Lidia Fersuoch, Venezia
Antonio Infante, Venezia
Francesca Zanovello, Venezia
Maurizio Buora, Udine